Bilder
Beschrieb
1
2

Umnutzung Postareal, Baden

Zuriba AG / Allreal, Zürich
Studienwettbewerb selektiv 2016, 2. Rang
In Zusammenarbeit mit 10:8 Architekten
 
MWV Bauingenieure
Stadt Raum Verkehr Birchler+Wicki
Fischer Immobilienmanagement
Visualisierungen Bildbau

 

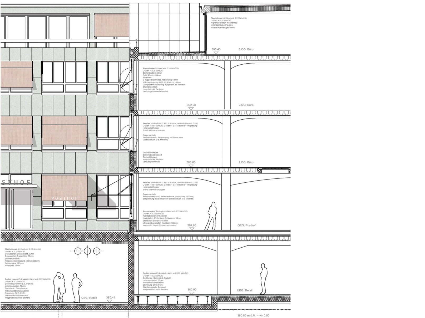
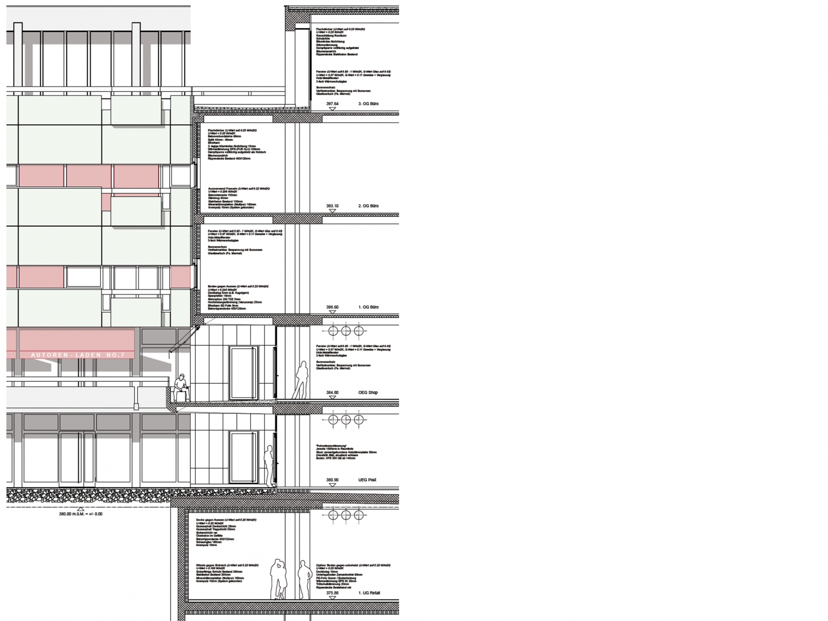
Das Postareal neben dem Bahnhof ist ein Schlüsselareal im zentralen Stadtgefüge von Baden. Es erstreckt sich vom Bahnhof bis zur Haselstrasse und besteht aus zwei markanten Gebäuden: der denkmalgeschützten Post von Karl Moser (1930) und deren Erweiterung von Häfeli-Moser-Steiger (1965). Als vertikales und horizontales Scharnier bündelt das Postareal Umsteigebeziehungen und wichtige städtische Verbindungen. Die Revitalisierung des Areals umfasst die Neuanordnung von verschiedenen Nutzungen auf den stadträumlich unmittelbar relevanten Geschossen sowie ein Konzept zur Sanierung der Gebäudehüllen.

Bei der Neuausrichtung eines solchen Areals ist eine konventionelle Umnutzung der Geschossflächen nicht zielführend. Deshalb soll das heute wenig belebte Postareal in verschiedene Bereiche unterteilt und mit neuen Wegverbindungen aktiviert werden. Ein neuer Durchgang auf Platzniveau trennt die beiden bestehenden Gebäude und schafft eine Verbindung vom Perron 1 zur Arkade. Die dort angesiedelten Shops beleben den gedeckten Vorbereich, der in eine Stadtterrasse mit Aussicht Richtung Kurpark mündet. Im darunterliegenden Geschoss wird die Hauptverkaufsfläche der neu positionierten Post (als Teil des Metroshoppings) durch eine Querverbindung getrennt. Diese erschliesst die beiden Treppenhäuser und führt in der Verlängerung in die neue Quartierverbindung mit Perronaufgängen, die von der Stadt Baden realisiert wird.

Der Moser- und der Häfeli-Moser-Steiger-Bau sind beide Zeugen ihrer Zeit; sie bilden die Ausgangslage für das denkmalpflegerische Sanierungskonzept. Mit der energetischen Erneuerung der Gebäudehülle auf der Innenseite kann der Charakter der Fassaden erhalten werden. Als Erkennungsmerkmal des Areals wird der Sonnenschutz bei beiden Bauten durch rote Stoffstoren vereinheitlicht. Im Inneren werden die teilweise sehr interessanten Beton-Tragstrukturen freigelegt. So können die Kommerzflächen in ästhetischer und finanzieller Hinsicht von einer zeitgemässen Rohbauästhetik profitieren.