Bilder
Beschrieb
1
2
3
4
5
6
7
8
1
2
3
4
5
6
7
8

Verdichtung Wohnsiedlung Frankental, Zürich-Höngg

 

Gewerkschaftliche Wohn- und Baugenossenschaft GEWOBAG, Zürich
Projektwettbewerb selektiv 2009, 1. Preis
In Zusammenarbeit mit Egli Rohr Partner
Ausführung 2012 - 2016

MWV Bauingenieure
Andreas Geser Landschaftsarchitekten
Primobau
Zimmermann Fotografie

Bausumme: 55.7 Mio.
Bauvolumen: 59‘700 m³

 

Die bestehende Wohnsiedlung Frankental, am Stadtrand von Zürich-Höngg gelegen, ist städtebaulich auf sich bezogen. Die Wohnscheiben von Sauter und Dirler Architekten aus den 60er-Jahren schaffen – dank der Hanglage und ihrer diagonal verschobenen Situierung – räumliche Bezüge zwischen den Weiten der im Südosten gelegenen Stadt und dahinter liegendem Alpenvorland sowie dem im Südwesten gelegenen Limmattal.

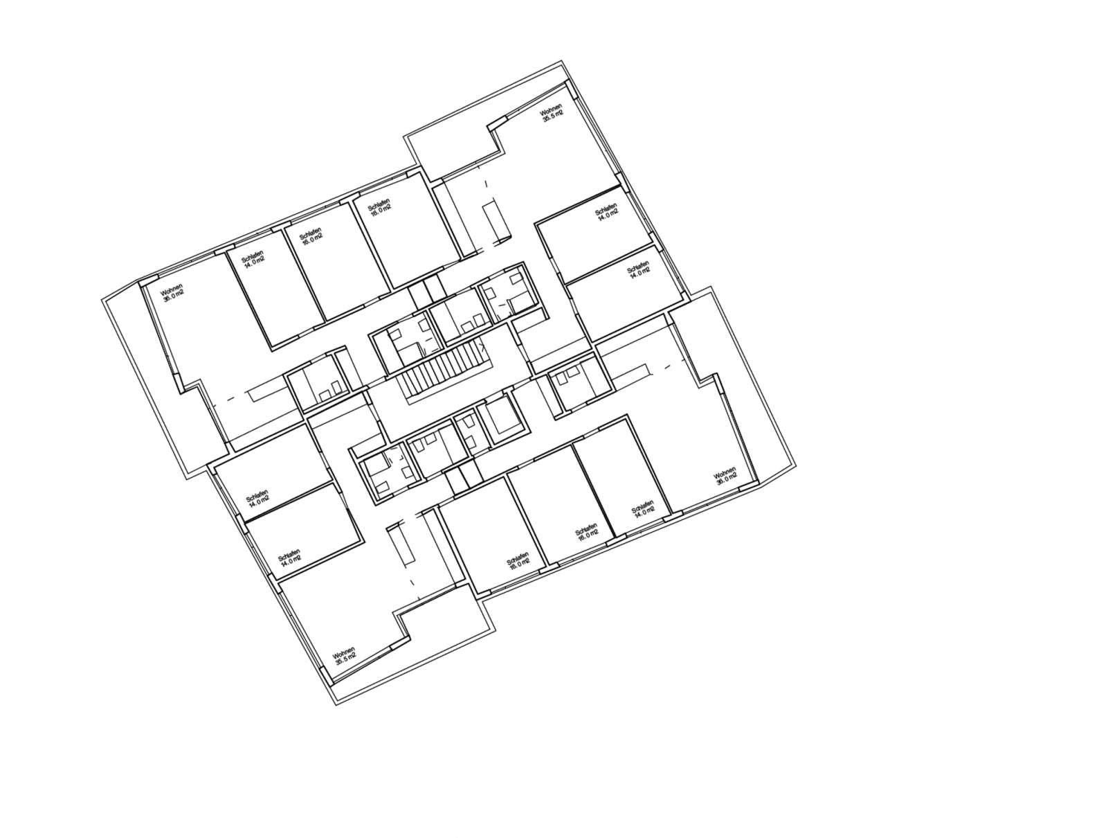
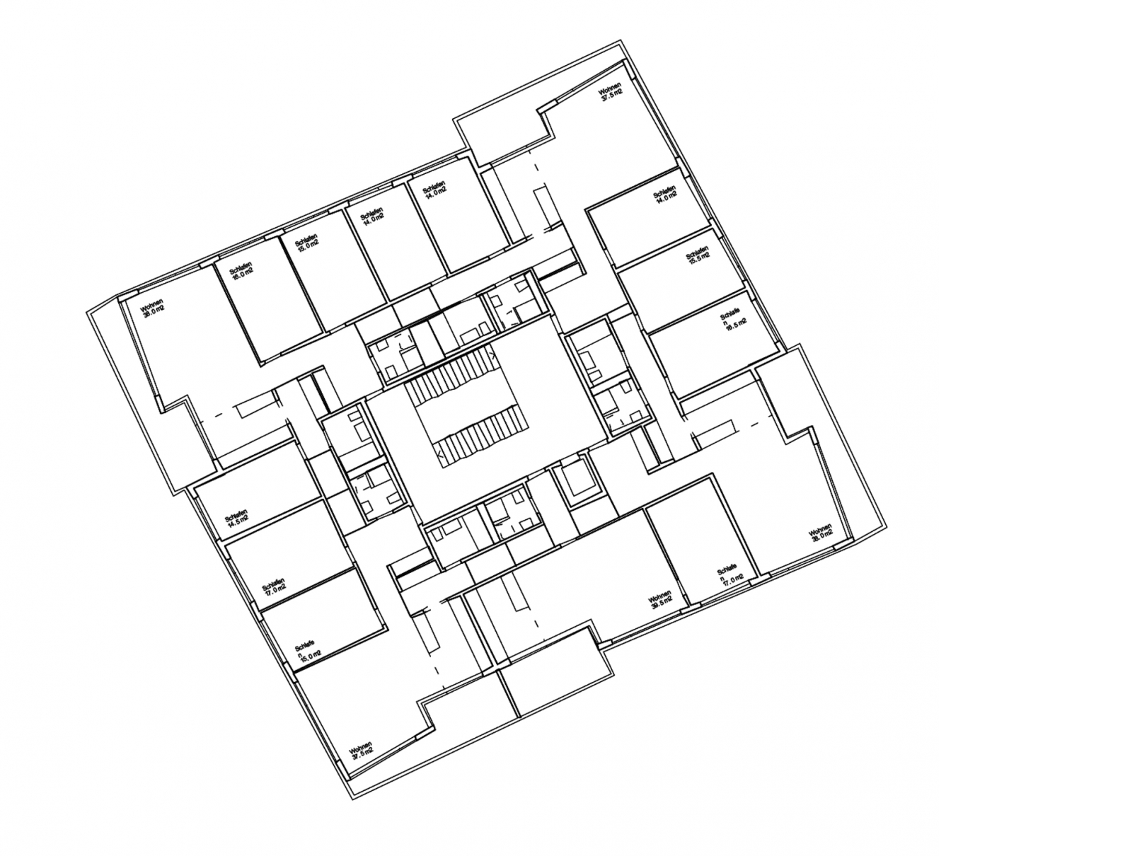
Ohne die schlüssig situierten Wohnscheiben infrage zu stellen, werden drei neue, punktförmige Bauten gesetzt. Die Neubauten sind der Massstäblichkeit ihrer direkten Umgebung angepasst und bilden durch ihre leicht variierte Ausformulierung ein eigenständiges Ensemble, das zudem den neuen Siedlungsschwerpunkt bildet. Die Erdgeschosse sind für gemeinschaftliche Nutzungen vorgesehen.

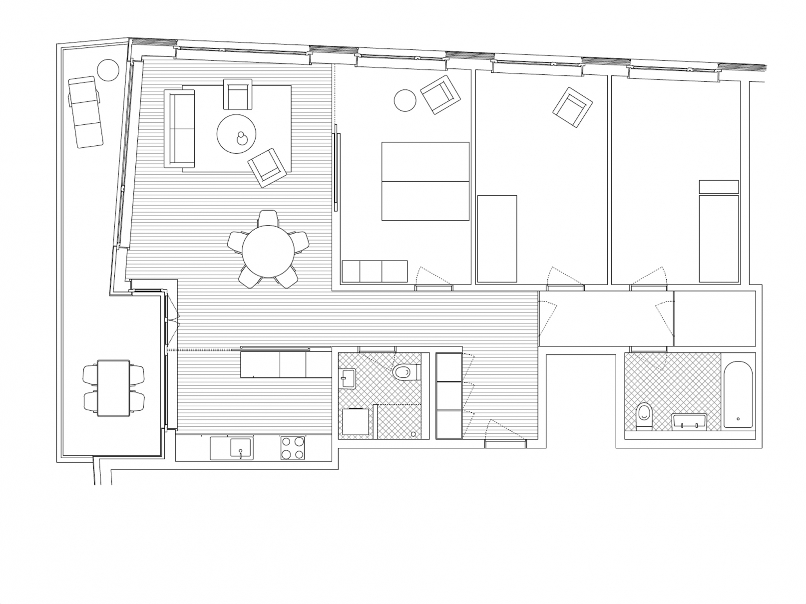
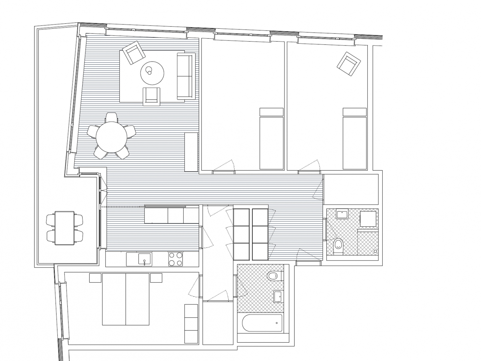
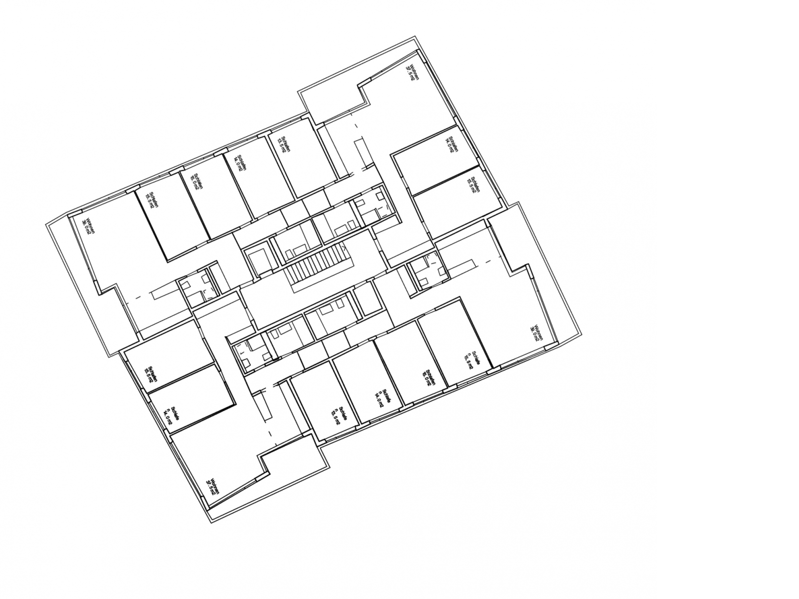
Alle drei Gebäude sind als Mehrspänner rationell organisiert. Sämtliche Wohnungen sind, mit Ausnahmen weniger Kleinwohnungen, zweiseitig orientiert und profitieren sowohl vom Ausblick ins Tal als auch zum Hang. Dem ‚Zwiebelschalenprinzip’ folgend, wird der Abfolge von innerem Treppenkern, dienenden Räumen, Wohn- und Schlafräumen bis zur Fassade auch in der konstruktiven Ausbildung Rechnung getragen.