Bilder
Beschrieb
1
2
3
4
1
2
3
4

Erweiterung und Dachausbau Reiheneinfamilienhaus, Winterthur

Andreas und Brigitte Stehrenberger, Winterthur

Direktauftrag 2004
stehrenberger architektur
Entwurf und Realisation 2004

bonomo engineer
Georg Aerni Fotograf

 

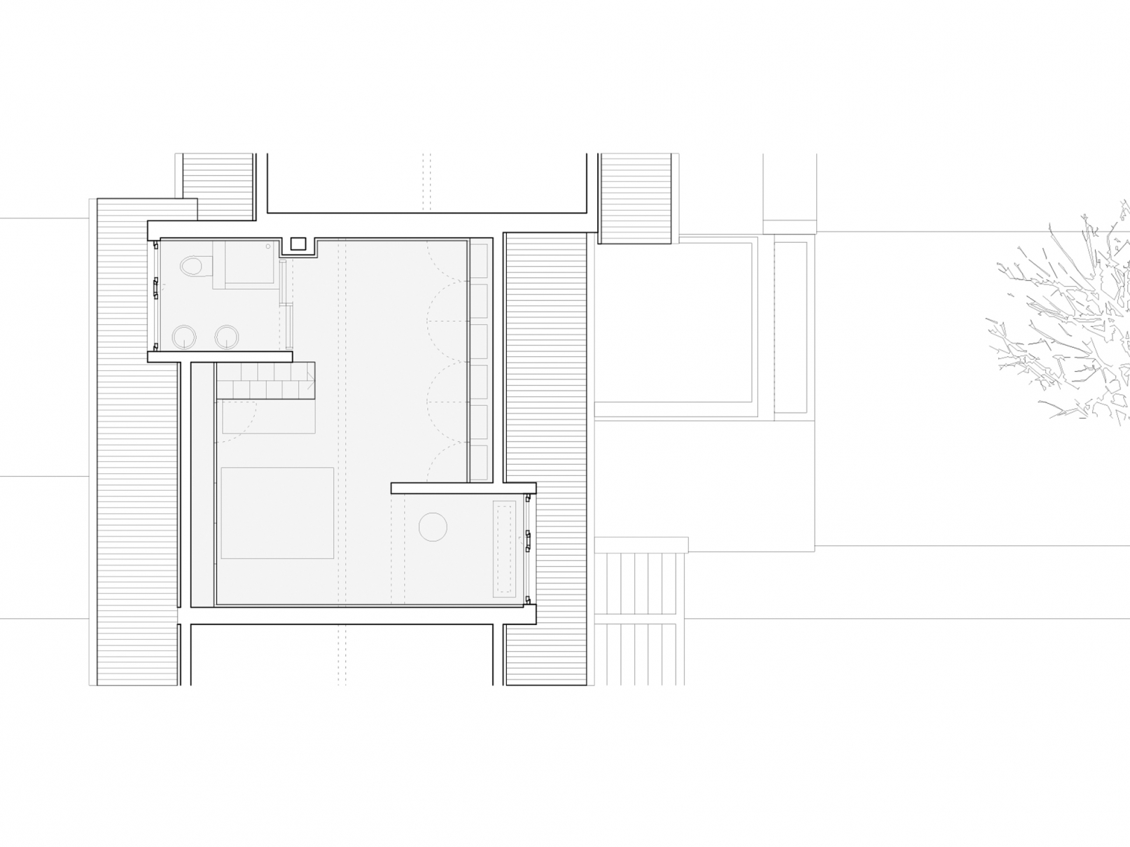
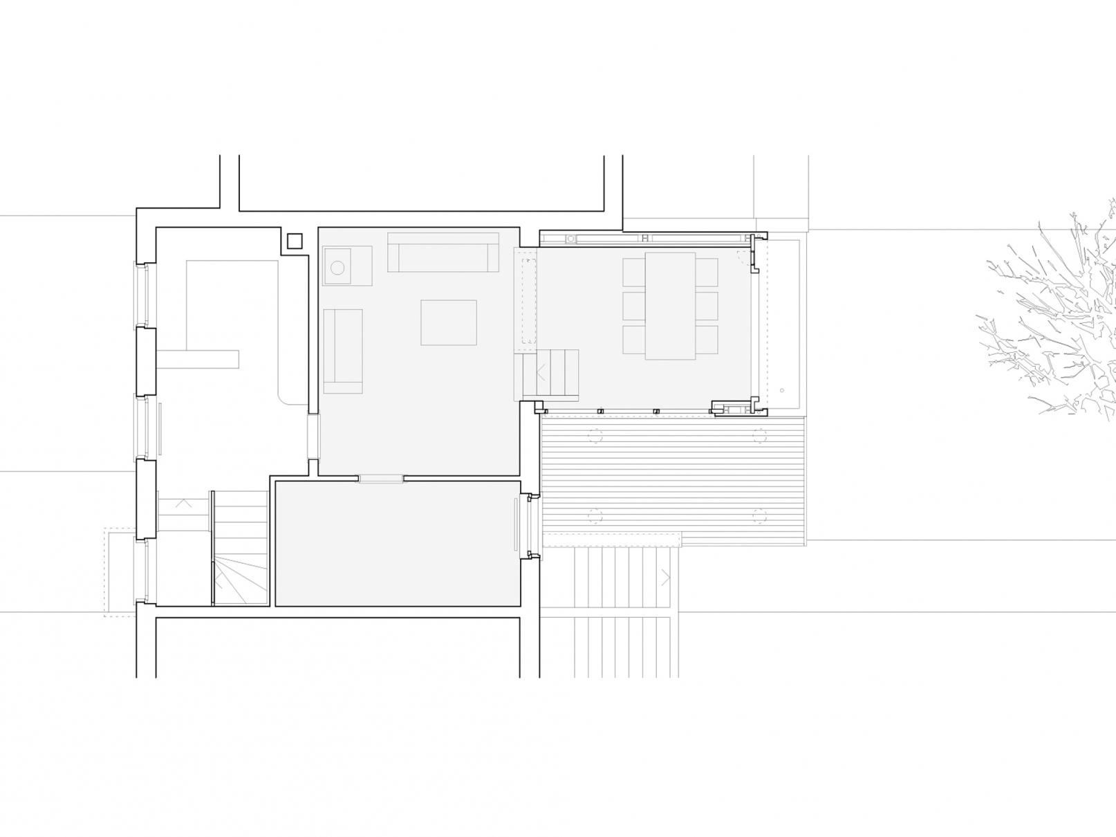
Das Mittelhaus ist Teil einer Wohnsiedlung der Nachkriegszeit am Stadtrand von Winterthur. Die zehn Reihenhäuser gliedern sich in je vier Wohneinheiten mit leicht vorgestelltem Kopfbau und bilden zusammen mit Schule und Läden ein kleines Quartier. Der Vorgarten und der südseitige Nutzgarten tragen wesentlich zum Charakter der Gartenstadt bei, dessen wesentliche Qualität im Aussenraum liegt.

Die Kammerstruktur dieser Häuser aus den späten 40er Jahren mit einer Grundfläche von rund 50m3 entspricht nicht mehr den heutigen Wohnbedürfnissen. Nachdem in einer früheren Phase der Dachstock zum Elternschlafzimmer mit Bad ausgebaut wurde, entstand in einer weiteren Etappe die Erweiterung des Wohnraumes im Erdgeschoss. Ein offener und heller, einem Winterzimmer ähnlicher Raum, stellt neu den direkten Zugang zum Garten her.

Die Erweiterung sollte die Massivität des bestehenden Gebäudes weiterführen. Die knappen Raumverhältnisse erforderten jedoch eine Minimierung der Konstruktionsstärke, sodass anstelle des verputzten Mauerwerks eine Stahlstruktur mit grossflächiger Metalltafelverkleidung gewählt wurde. Die optische Schwere bleibt damit gewährleistet. Die frontale Festverglasung und das seitliche Faltfenster kommen dem Wunsch nach mehr Licht und Einbezug des Gartens in den Wohnbereich entgegen. Unterstützt wird dieses Begehren zudem durch die Komponente der Positionierung des Neubauvolumens auf Gartenniveau. Durch die erzielte Niveauegalisierung von Terrasse und Wohnraum kann dieser im Sommer nochmals erweitert werden. Garten, Terrasse, unterer und oberer Wohnraum beschreiben neu eine kaskadenartige Raumfolge, welche das bestehende Hochparterre sanft ins Freie führt.